Contents
ROTARY KILN MECHANICAL TRAINING

[wpecpp name=”package + Updates forever” price=”250″ align=”center”]
Kiln General
Rotary kiln assembly

1 Rotary kiln shell 7 Guard for rack and pinion drive
2 Kiln inlet with inlet seal with lubrication device
3 Tires with fastening 8 Kiln drive
system 9 Kiln outlet with outlet seal
4 Supporting roller stations 10 Kiln hood
5 Kiln longitudinal guide 11 Clinkering zone cooling (optional)
6 Rack and pinion drive
The POLRO 2 – support kiln

• splined tires (cold gap 0.4%)
• self-aligning rollers
• direct drive via supporting rollers
• pneumatically applied inlet and outlet seals
• air cooled kiln inlet tray
Design of rotary kilns

3 – support kiln versa 2 – support kiln

Statically undefined
• possibility of
– extreme overload
– plastic deformation
• requirement for
– etxra safety margin
– regular adjustment
Statically defined
• constant support loading
• elastic deformation only
• no sensitivity to misalignment
long enough for process?’
Kiln Inlet
“Low-dust” kiln inlet

Air cooled segmented inlet through

Kiln inlet seal

Kiln inlet
Slot adjustment between support ring and slide ring

Air pressure system

Kiln Outlet
Kiln outlet sealing

Principle of kiln outlet sealing

Kiln outlet



Kiln Shell
Description of the kiln shell calculation basics
The shell is a rotating drum made from rolled steel plates. These shell sections have the same inside diameter but different plate thickness. All sections are welded together.
The shell thickness is a result of some calculations, the so-called Kiln Static. Basic for the kiln static are some mechanical rules and some limiting factors for the shell material, the so-called Design Criteria.
The design criteria for a kiln shell is the Bending Stress.
Different kiln areas have different Loads.
Functions of the kiln shell
• Conveys material
• Guides gas from cooler to kiln
• Creates a constant moving material bed allows heat exchange between gas and material
• Holds the brick lining
Splined Tires
The tire is a steel ring on the outside of kiln shell. It works as an stiffener for the kiln shell. The kiln tires have to carry the kiln weight.
Functions:
– Transfer load from shell to the rollers
– Keeps the shell in a round shape
– May transfer torque from roller to tire
Design criteria:
– Tire bending stress
– Ovality in %
Splined tires





Floating Tires
Floating (loose) tires

Floating tires


Comparison of kiln shell ovalities
Supporting Roller Station
Description and function of a kiln roller
A kiln roller is a steel wheel which is supported on each side. Each tire is supported by two rollers.
Functions:
-Transfer load from tires to base plate
– Supports tires and keeps them in position
– Can transfer torque from rollers to tire
– Allows rotation
Design criteria:
– Hertz Pressure
– Bearing Pressure
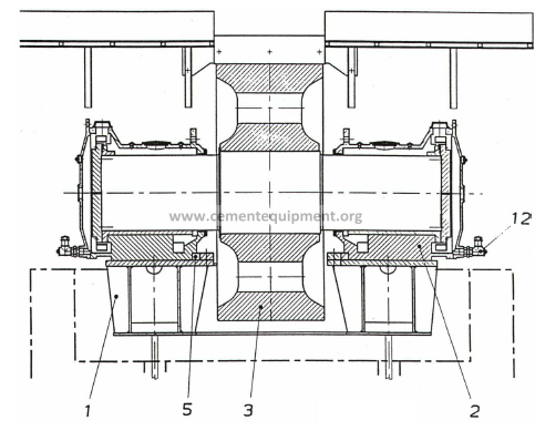
Roller station
1 Base frame
2 Bearing housing assembly
3 Roller and shaft assembly
5 Guide block
12 Oil level indicator

Self aligning roller station for Polro kiln

Kiln Drives
Girth gear drive system

1 Bridge support
2 Bridge plate
3,4 Plate bolts
5 Girth gear
6 Heat shield
Self-aligning pinion

Electro-hydraulic drive system
Permitted tilting: ± 10 mm

Electro – mechanical drive

Kiln Hood

1 Lower part of hood
2 Upper part of hood
3 Suspension door
4 Trolley arrangement
5 Burner seal
6 Inspection port
7 Access door
8 Sub plate
9 Collar segment
10 Seal to cooler
11 Opening for measuring socket
Maintenance
Maintenance kiln inlet
Check points of kiln inlet seal:
• Slot between support ring and slide ring
• Thickness of the wear ring
• Visual check of sealing surfaces
• Check for material leakage
• Pre-tensioning of sealing robe


Air pressure net:
• Air pressure for pneumatic-cylinder
• Check of water separator
• Check of lubricator of pressurized air
• Check for leakages

Check of outlet seal: (similar to inlet seal), with additional points:
• Graphite lubrication of slide rings
• Function of pendling hatch
• Clearance of dust chute
• Functioning operation of expansion joints
Maintenance splined tire
Check of splined tire fastening:
• Check of wedge pre-tension
• Visual check of tire area
• Check of welds
Maintenance floating tires
Check of floating tire fastening:
• Control of relative movement
• Play measurements during stop times
• Control of axial retainers
• Lubrication of slide surfaces
• Check of welds

Maintenance / lubrication points

1 Girth gear
2 Compressor plant
3 Oil atomizer

4 Self-aligning pinion and stock bin
5 Splash lubrication girth gear pinion
6 Pinion bearing
7 Rotary kiln drive

15 Kiln tire
16 Inlet seal
17 Oil atomizer for inlet seal
18 Oil atomizer for outlet seal
19 Cooling air fan

20 Fan for clinkering zone cooling system
21 Supporting roller bearing station I
22 Supporting roller bearing station II
23 Supporting roller bearing staton III
24 Supporting roller bearing station IV
25 Graphite lubrication equipment

26 Thrust roller
27 Safety thrust roller
28 Slide pin
29 Hydraulic kilns longitudinal guide
30 Graphite lubrication equipment
